Our office will be closed from 24th Dec & reopen on 2nd Jan 2026. Orders made during this time will be processed on our return. Last MVHR filter orders will be sent on 22nd December

What is the role of ducting in a MVHR System?

Ducting is an essential part of any ventilation system and is responsible for the distribution of air in and around your home. 

The type of ducting you choose and the quality of the installation can mean the difference between a system that works effectively and not!  Energy efficiency and noise levels can be increased if the incorrect ducting is used and the unit has to work hard to compensate.  Take time to consider the options for branched and radial ducting systems for installed performance - there are benefits for both!

What is the role of ducting in a MVHR System?

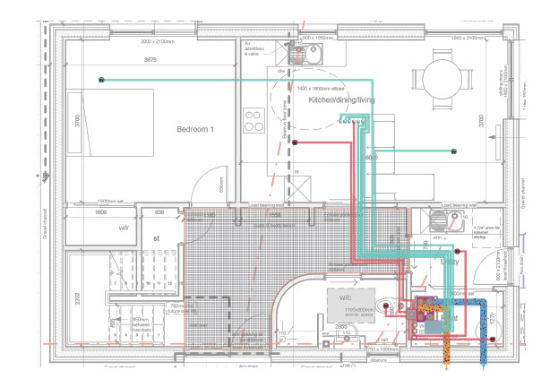
Radial Ducting

Radial ducting systems ( or semi-rigid ducting) use one central manifold where air is split equally into the duct runs where it is evenly distributed between rooms.

Key information: 

  • No crosstalk between rooms (due to dedicated runs to each room)
  • Up to 85% less connections used compared to rigid/branced ducting
  • Lower air resistance resulting in lower running speeds and operational noise
  • Easier installation without the need for sealants

Branched Ducting

Branched ducting systems (or rigid ducting) use a central duct route from the MVHR unit with branched off sections to distribute airflow to each room.  


Key information:

  • Cost effective solution 
  • Suitable for small and larger properties 
  • Varying range of duct sizes to achieve airflow performances
  • Suitable for use with MVHR (Heat Recovery) Systems

Semi-Rigid Ducting

Semi-Rigid ducting is a popular solution for residential ventilation projects and very suitable for use with heat recovery ventilation (MVHR) systems.  As the name suggests, semi-rigid ducting is a flexible solution that reduces the amount of connections required as it is run out to each room/valve.  You simply cut the entire duct to size and brand and shape it fit.  


Semi Rigid Ducting Range Info

The Key Components Of Semi-Rigid Ducting

Semi-Rigid ducting is made up of a number of parts;

Manifold - The manifold (top left) is the ducting and air distribution box - duct from the top of the unit are connected to the manifold and then each room duct is connected to the ports available (each room has a dedicated run)

Air Valves - Valves are available in many different styles to suit your home and interior design requirements. They are fitted to the ducting that terminates in the ceiling of each room - air valves either extract or supply air into the room

External Grilles - Grilles act as the terminations of the ductwork to the outside - either exhausting the air or bringing in the new replacement supply air

Duct (Pipe)  - The flexible pipe carries air around your property to each room - it's flexible nature means you can bend it and shape it around the building with ease

The Key Components Of Semi-Rigid Ducting


MVHR Design for your home

Looking for a MVHR Design and Quotation?

Check out VentAssure™ our personalised package designed to support your home ventilation project from start to finish;

includes;
Design Compliance Calculations
MVHR System Design and Layout
VentAssure™ Installation Support Package
Credit Towards your Materials Order

The complete home ventilation package from The Air Shop.

More Info
 MVHR Design for your home

Zehnder ComfoTube Semi-Rigid Ducting

The Zehnder ComfoTube air distribution systems supplies fresh air between ventilation systems and homes, an internal wall of 'Clinslide' to make sure airflow is hygentic, it reduces the build up of dust and is easier to clean. It is flexible and durable as well as airtight, and is suitable for installation into concrete, earth or in riser ducts.

  • Resistant to corrosion
  • Ring stiffness greater than 8 kN/m²
  • Fast and easy installation
  • Lightweight
  • Easy to clean
Zehnder ComfoTube

Ubbink Air Excellent Semi-Rigid Ducting

The Ubbink Air Excellent semi-rigid ducting range offers low pressure, easy install and airtight ducting solutions to help minimise energy consumption and sound production.

It is made out of virgin PE to ensure durability and has a smooth inner surface.

  • High density with a ring stiffness of 7.85KN/m2 of force
  • Airtight (class D/ATC 2 up +/- 2000 Pa)
  • No sealent or adhesive required for installation
  • Flexible and durable
  • Lightweight
Ubbink Air Excellent

More Info on Semi Rigid Ducting

What are the advantages of using plastic semi-rigid ducting?

Semi Rigid Ducting is used as a radial ducting system - It is lightweight, easy to install, and resistant to corrosion and mould growth. With it’s flexibility, it can be easily shaped to fit various installation requirements. As a single run of ducting is dedicated to each run/room, no further connections are required, reducing leakage and performance issues. 

How do I install semi-rigid ducting?

With a semi-rigid radial system, an air distribution or manifold box is connected to the unit.  A series of ports are then used to connect each ducting tube for each room. Installation involves cutting the duct to size using a utility knife or saw, securing it with clamps/sealing rings (manufacture dependned), and then running it out and connecting it to the ventilation system's outlets and inlets. Follow manufacturer guidelines where applicable.

Is semi-rigid ducting suitable for all types of ventilation systems?

Plastic semi-rigid ducting is perfect for use with residential ventilation systems such as MVHR and MEV.

Can semi-rigid ducting be bent around corners?

Semi-rigid ducting has flexibility to bend and shape around corners to some extent, but excessive bending may lead to airflow restrictions. Use gentle curves to avoid compromising airflow efficiency.

Can I clean plastic semi-rigid ducting?

Semi Rigid Ducting is a robust product with a ridgged design.  A there are no joins in each duct run, cleaning with specialised ducting cleaning brushes is recommended.  Some manufacturers offer semi-rigid ducting with an internal smooth coating which offer additional hygienic benefits.

How long can runs of semi-rigid ducting be?

The maximum length of a run of semi-rigid ducting depends on factors such as the diameter of the duct, the airflow rate and the MVHR unit airflow capacity. . AS there are no joins, and dedicated runs to each room, resistance can be lower and potentially longer runs can be used.  Consider noise levels and ensure that the MVHR unit is correctly sized to provide the required airflow rates. 

Can plastic semi-rigid ducting be insulated?

In the UK, insulated ducting is required for any ductwork passing through a cold space to eliminate condensation forming inside the ducting and dripping back down into the unit or valve.  Semi-rigid ducting can be insulated either manually with sufficient insulation wrap, by installing pre-insulated options.

Ready To Shop?

Ready To Purchase? Looking For Competitive Pricing?

Head to Build A Quote - With all the parts to complete your ventilation system, simply add all of your products to your basket and we'll send you a quote in 24 hours!*

With all major ventilation brands from Zehnder to Ubbink and more, we are specialists in ventilation and can help you create the healthiest indoor air quality.

*Monday-Friday

Build My Quote Now
Ready To Shop?

We use cookies to personalise your experience and to analyse our traffic. Do you want to allow all cookies or view and change settings?